MERCATI

Il nostro percorso ci ha portato ad esplorare e a realizzare progetti in mercati diversi. Scopri cosa possiamo fare nel settore della tua azienda.

Progetto potenziamento di impianto di produzione sotto Direttiva Seveso per azienda del settore petrolchimico

SERVIZIO MERCATO CLIENTE Azienda del settore petrolchimico ANNO 2011 - 2013

Brief

Il progetto prevede l’aumento di sostanze pericolose e pertanto per poter procedere con la realizzazione e la messa in funzione dell’impianto occorre ottenere le autorizzazioni previste dalla normativa nazionale vigente (ex D.Lgs. 334/99 e D.Lgs. 105/2015) attraverso un preciso iter procedurale.

Sfide di progetto

Poiché tale impianto è progettato per coprire un’urgente esigenza di mercato, si rende necessario procedere nel minor tempo possibile senza dilazione dei tempi burocratici.

Soluzione

NIER ha organizzato un team di tecnici esperti in materia di rischi di incidente rilevante, potendo così sviluppare parallelamente più attività per poter procedere più velocemente.

NIER, grazie al buon rapporto di collaborazione instaurato negli anni di esperienza con l’autorità competente dell’Emilia Romagna (CTR) ha proposto incontri tecnici informali al fine di rendere più snella la procedura di autorizzazione

Fasi di esecuzione

FASE 1

Analisi ”Hazop” del nuovo impianto per individuare eventuali criticità di sicurezza e pertanto poter revisionare il progetto.

FASE 2

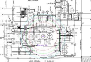
Redazione Rapporto di Sicurezza preliminare relativo al nuovo impianto: acquisizione della documentazione di progetto, individuazione dei top event incidentali di riferimento, calcolo delle relative frequenze di accadimento e simulazione delle conseguenze attese attraverso il software EFFECTS-GIS (TNO Industrial Safety), analisi degli effetti domino.

FASE 3

Assistenza nella fase di istruttoria e produzione delle integrazioni richieste dal CTR .- Comitato tecnico regionale

FASE 4

Redazione Rapporto di Sicurezza particolareggiato, relativo all’intero stabilimento.

Risultati ottenuti

Il nulla osta di fattibilità ed il Parere tecnico conclusivo da parte del CTR sono stati ottenuti nei tempi previsti e la messa in esercizio del nuovo impianto di produzione è stata avviata senza ritardi, permettendo all’azienda di coprire la richiesta di mercato.

 

Rappresentazione grafica distanze di danno relative ad uno scenario di Pool Fire per perdita di contenimento da un serbatoio.

Iscriviti alla Newsletter .